
EDEKA ImPuls Truck: das Konzept wird zur Realität
Der EDEKA ImPuls Truck ist in einer entscheidenden Phase angekommen. Aus Skizzen, Ideen und Workshops wird nun ein konkreter Erlebnisraum. In den vergangenen Wochen haben wir zwei große Themen vorangebracht: die finale Innenausstattung – und die inhaltliche Ausarbeitung unserer Stationen. Denn klar ist: Der Truck soll nicht nur gut aussehen. Er soll Wirkung entfalten.
Marktalltag neu gedacht – mit Augmented Reality
Im Zentrum steht unser Personalmarketing-Modus. Schülerinnen und Schüler durchlaufen mehrere Stationen, die reale Situationen aus dem Markt abbilden: eine Beratungsszene im Kundenkontakt, Entscheidungsfindung im Tagesgeschäft, Warenpräsentation oder Priorisierung unter Zeitdruck.
Der Unterschied zu klassischen Berufsorientierungsformaten: Die Jugendlichen stehen nicht vor Roll-ups oder PowerPoint-Folien. Sie stehen mitten im Geschehen. MIt Apple Vision Pro Brillen wird der Raum in Echtzeit mit computergenerierten Inhalten überlagert. Das heißt: Reale Situationen werden digital ergänzt.
Ein Beispiel: Aus einer Warenfläche wird eine interaktive Sortimentsaufgabe. Produkte verändern sich digital, Kunden reagieren virtuell auf Entscheidungen, Zeitdruck wird simuliert. In einer Beratungssituation passt sich das Szenario an das Verhalten der Teilnehmenden an. Entscheidungen haben unmittelbare Auswirkungen im digitalen Ablauf. Die Jugendlichen erleben Marktprozesse – statt sie nur erklärt zu bekommen.
Am Ende werden ihre Entscheidungen, Herangehensweisen und Verhaltensmuster in einem individuellen Stärkenprofil gebündelt. Dieses Profil wird mit unseren geclusterten Ausbildungs- und Berufsbildern abgeglichen. Nicht die Frage „Was willst du mal werden?“ steht im Mittelpunkt – sondern: „Wo passen deine Stärken bei EDEKA konkret hin?“


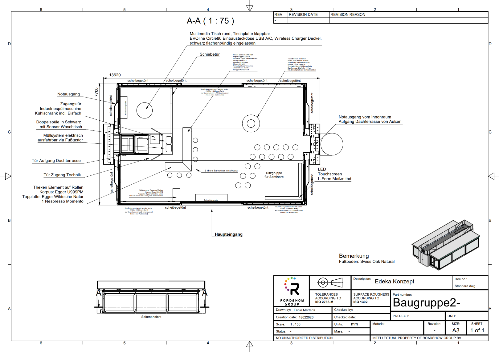
Ein Raum – unendliche Einsatzmöglichkeiten
Parallel dazu haben wir die Innenarchitektur so geplant, dass der Truck in drei Modi funktioniert: Personalmarketing, Seminargeschäft und Event. Die Empfangstheke ist gleichzeitig Kochbereich. Der hintere Bereich lässt sich als Lounge oder Besprechungsraum nutzen. Ein Multifunktionstisch wird im Seminarbetrieb zur Arbeitsfläche – und im Personalmarketing-Modus zur aktiven Station. Große Screens ermöglichen Präsentation, Austausch und Auswertung. Unser Ziel war dabei immer: maximale Flexibilität bei klarer Struktur. Der Raum soll inspirieren – und gleichzeitig praktikabel sein.
Ein Name, der Haltung zeigt
Über 90 Namensvorschläge aus unserer Abteilung haben gezeigt, wie viel Identifikation in diesem Projekt steckt. Der finale Name lautet: EDEKA ImPuls Truck. Er steht für das, was wir erreichen wollen: Impulse setzen. Für Jugendliche. Für Entwicklung. Für Ihre Märkte. In den kommenden Wochen gehen wir weiter in die Feinabstimmung und in erste Tests. Schritt für Schritt entsteht ein Instrument, das praxisnah, modern und wirkungsvoll ist – und das genau dort unterstützt, wo Nachwuchsgewinnung heute entscheidet.
Eine Woche. Ihr Markt. Unzählige Möglichkeiten.
Für Sie als Kaufmann eröffnet der EDEKA ImPuls Truck vor allem eines: Gestaltungsfreiheit. Unser Gedanke ist, dass Sie den Truck buchen, auch über mehrere Tage – und dann selbst entscheiden, wie Sie ihn einsetzen. Vielleicht starten Sie montags mit eingeladenen Schulklassen im Personalmarketing-Modus. Am Dienstag nutzen Sie den Raum für ein Inhouse-Seminar, etwa zum Thema Thekenbau – mit dem Vorteil, dass Sie Inhalte direkt im Markt testen und umsetzen können.
Mittwoch wird der Truck zur Eventfläche für Kunden für ein Tasting von regionalem Wein, Donnerstag tagsüber zur Aktionsfläche für Ihre Kundinnen und Kunden – und am Abend zum Rahmen für ein Teamevent. Das sind nur Beispiele. Der Raum ist bewusst so konzipiert, dass er sich an Ihre Ziele anpasst – ob Nachwuchsgewinnung, Weiterbildung, Kundenbindung oder Teamstärkung. Entscheidend ist nicht, was wir vorgeben. Entscheidend ist, was Sie daraus machen.
Sie haben Interesse an einer Buchung? Melden Sie sich gerne bei:
Isabell Klingels
Tel.: +49 781 502-6096 (Erreichbarkeit: Mo-Do 08:00-13:00 Uhr)
Mail: Isabell.Klingels@edeka-suedwest.de